• Адрес : г. Москва, ул. Монтажная, д. 3
  • pkts-msk@mail.ru
  • Звонок консультанта
0 Список желаний
0 Сравнить
'ПК ТС' style=

Проекты

  • О компании
  • Фотогалерея проектов
  • Контакты и обратная связь
  • +7 (499) 325-65-87
'ПК ТС' style=
Позвонить
Меню
Главная Двухэтажные Мега 25
Мега 24 5 705 000 ₽
Назад к товарам
Мега 17 4 410 000 ₽

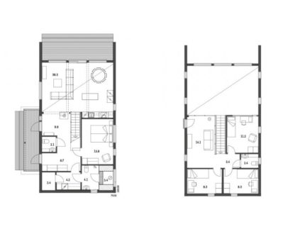
Мега 25

5 900 000 ₽

Общая площадь 180.7 кв.м
Количество этажей 2
Количество комнат 4
Количество санузлов 3
С гаражом: есть

Обсудить проект
Сравнить
Добавить в избранное
Категория: Двухэтажные
закрыть

Рекомендуем обратить внимание

  • Мега 8 5 650 000 ₽
  • Мега 6 4 835 000 ₽
  • Мега 9 2 500 000 ₽
  • Варианты строительства этого дома
  • admin
Варианты строительства этого дома
  • Под кровлю
  • Под ключ
  • Под ключ с отделкой

Фундамент

  • Монолитные железобетонные буронабивные сваи, ростверк, плита фундамента в соответствии с проектом

Стены

  • Возведение наружных и внутренних несущих стен из газоблока автоклавной обработки (производство ПЗСП, Бетокам, Теплит) W=300-400 мм

Перекрытия

  • Устройство перекрытий из ж/б плит, ж/б перемычек

Крыша

  • Устройство стропильной системы с покрытием металочерепицей, утеплением (базальтовые плиты плотностью 35 кг/м3) и паро-гидроизоляцией с использованием супердиффузионной мембраны

Окна и дверные проёмы

  • Устройство перемычек из У-блоков, ж/б перемычки, металлические (уголок согласно проекту) и монолитные

Уборка на площадке

  • Сбор и вывоз строительного мусора

Дополнительно к комплектации «ПОД КРОВЛЮ»

Утепление внешних стен

  • Утепление наружных стен базальтовой плитой 100 мм (плотностью до 120 кг/м3, или вспененным пенополистиролом 140 мм( плотностью 35 кг/м3 );

Внутренние перегородки

  • Из газоблоков толщиной 100 и 200 мм (или гипсокартона);
  • Штукатурка стен, утепление межэтажных перекрытий, стяжка пола, подготовка под чистовую отделку;

Окна и двери

  • Установка окон двухкамерных из пятикамерного профиля ПВХ (толщина 70 мм), и входной металлической двери с «термобарьером»

Фасадные работы

  • Отделка фасадов (керамический кирпич или декоративная штукатурка)
  • Устройство водостоков, карнизов;

Вентиляция

  • Устройство вентиляционных каналов;
  • Отделка вентканалов выше кровли;
  • Отделка фасадов (керамический кирпич или декоративная штукатурка)

ГВС, ХВС и канализация

  • Монтаж систем ГВС и ХВС;
  • Установка бойлера на горячую воду, гидроаккомулятора и фильтра грубой очистки воды;
  • Подбор и установка септика
  • Подключение системы водоснабжения к скважине;
  • Установка глубинного центробежного насоса

Электрика

  • Монтаж распределительного щита с установкой автоматов и УЗО
  • Монтаж кабеля внутренней электросети сечения от 3х1.5мм до 5x10мм;

Дополнительно к комплектации «ПОД КЛЮЧ»

Стены

  • Нанесенифе декоративной штукатурки (или поклейка обоев);

Полы

  • Укладка ламината (или др. напольных покрытий) по проекту;
  • Установка плинтусов.

Двери и потолок

  • Установка межкомнатных дверей;
  • Установка натяжных потолков.

Санузлы

  • Укладка настенной и напольной плитки. Установка сантехники (раковина, ванна и др.) по проекту

Уборка на площадке

  • Сбор и вывоз строительного мусора
admin

Другие проекты

Сравнить
Добавить в избранное

Мега 13

Двухэтажные
3 710 000 ₽
Сравнить
Добавить в избранное

Мега 26

Двухэтажные
5 950 000 ₽
Сравнить
Добавить в избранное

Мега 9

Двухэтажные
2 500 000 ₽
Сравнить
Добавить в избранное

Мега 27

Двухэтажные
5 980 000 ₽
Сравнить
Добавить в избранное

Мега 23

Двухэтажные
5 610 000 ₽
Сравнить
Добавить в избранное

Мега 15

Двухэтажные
4 010 000 ₽
Сравнить
Добавить в избранное

Мега 17

Двухэтажные
4 410 000 ₽
Сравнить
Добавить в избранное

Мега 30

Двухэтажные
7 460 000 ₽
1

Внушительный опыт

Высокий профессионализм каждого: от дизайнера и конструктора до каменщика и плотника

Read more
2

Соблюдение технологий

Четкое соблюдение технологии всех строительных процессов в соответствии с требованиями и нормативами

Read more
3

Высокое качество

Высокое качество производимых нами строительно-монтажных, отделочных и других работ

Read more
4

Индивидуальный подход

Индивидуальный подход и внимательное отношение к каждому нашему клиенту

Read more
5

Разумные цены

Предлагаем нашим клиентам доступные цены. Максимально подстраиваемся под Ваш бюджет

Read more
6

Материалы

Используем только качественные экологичные материалы проверенных поставщиков

Read more
7

Внутренняя отделка

Поможем с дизайнерскими решениями, подберем материалы, подскажем с отделкой

Read more
8

Разумные сроки

Все наши проекты сданы точно в срок согласно договора. Никаких задержек и внеплановых отсрочек по сдаче проекта

Read more
9

Круглогодичность

Технологии строительства позволяют возводить объекты 12 месяцев в году в любых климатических условиях

Read more
10

Поэтапная оплата

Поэтапная оплата позволит Вам контролировать свой бюджет и планировать расходы

Read more
11

Полный контроль

Заказчик имеет возможность контролировать весь процесс строительства на всех этапах

Read more
12

Гарантия

«ПК ТС» гарантирует качество своей работы! В подтверждение этого даём 7 лет гарантии после строительства

Read more

г. Москва, ул. Монтажная, д. 3

  • +7 (499) 325-65-87
Закрыть
  • Меню
  • Каталог
  • Все проекты домов
  • Одноэтажные
  • Двухэтажные
  • О компании
  • Фотогалерея проектов
  • Контакты и обратная связь
  • Список желаний
  • Сравнить
Сайдбар

Заполните форму

После получения заявки, мы свяжемся с вами в течение 15 минут и подробно проконсультируем по всем вопросам

Заполните форму

После получения заявки, мы свяжемся с вами в течение 15 минут и подробно обсудим подготовку и строительство выбранного вами проекта

Заполните форму

После получения заявки, мы свяжемся с вами в течение 15 минут и подробно проконсультируем по всем услугам